
有腔調有個性!230㎡復式混搭,露臺實現心中理想!
本案戶型面積較大,上下兩層加個露臺,地處市中心,常住人口為五人,家有三個孩子。業主本人偏好古典式的優雅莊重,但也喜歡現代風的簡約時尚,深思熟慮后最終確定了混搭的一個設計主題,中西結合,凸顯個性。
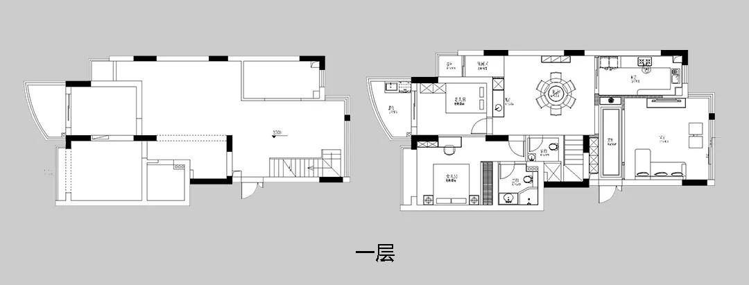
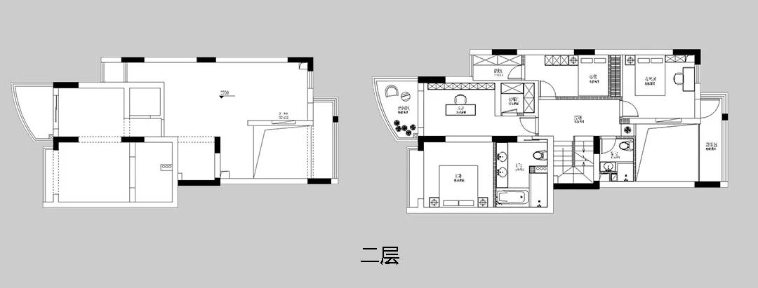
全屋雜糅了新古典、美式、中式、現代等風格的軟裝陳設,不同的空間有著不同的空間表情,想必每日住著看著都能感受到不一樣的趣味~ 01. 玄關 ENTRANCE 正對入戶口的玄關走道,盡頭處用矮柜輔以金框風景畫和擺件打造端景,實現高雅藝術表達。 02. 客廳 LIVING ROOM 轉入客廳,挑高的空間氣勢十足。軟裝材質、色彩選擇,傳達出濃厚的歷史文化底蘊,契合業主對高檔格調的追求,同時在硬裝上簡化線條,空間更加明晰可觀。 為了滿足大家庭的活動需求,設計師將原有的客餐格局重新規劃,一層客廳在最大范圍內打開,讓光線與氣韻流通,形成一個視野開闊、采光良好的會客休閑領域。從這里可以看到二樓孩子的學習讀書角。 5.4米的沙發背景墻自然成為整個客廳的視覺焦點,設計師選擇了護墻板的形式,木板分割出的造型有助于進一步拉伸層高,大氣高級的效果貫穿一二層空間。 客廳是家庭活動的重心,在裝飾上力求凸顯典雅莊重的特點。華貴的深色沙發靠墻安放,金屬鏤空隔斷在壁燈的照耀下泛起光澤,光滑的茶幾表面折射著溫度,優雅利落的奢華感,從種種細節間流露出來。 03. 餐廳 DINING ROOM 家里人口較多,基于實際需求考慮,使用圓桌是最合理的選擇。開放式操作臺兼做餐邊柜,中西結合的餐飲習慣也在這里得到了充分的體現。 04. 廚房 KITCHEN 廚房選擇了傳統的封閉式U型格局。U型廚房可以利用三面墻壁做出充足的儲物空間,動線也很流暢,而且這種封閉式的設計,最大程度地避免了外部用餐空間被油煙侵擾的問題。 05. 樓梯 STAIRS 木白配色的樓梯低調地串聯起上下層空間,原木質感給予家以寧靜,墻上一幅山水畫占據住了視覺焦點。 06. 臥室 BEDROOM 主臥面積寬敞,功能全面,衛生間衣帽間休閑區一應俱全。 睡眠區風格莊重,儀式感足,皮革硬包背景搭配華貴家具,細節處倍感精致。 主臥的休閑區,天氣好的時候,柔和的光線透過窗子灑進陽臺,優雅的主人坐在舒適的躺椅上靜靜品茶、看書,理想中的歲月靜好似乎照進了現實。 女兒房,顏色飽和度都很低,一種純粹的設計和生活方式就這樣被喚醒。 二樓兒童房。兒童房是孩子對色彩、形狀產生最初認知的地方,所以在設計上不僅要注重實用性,更要注重趣味性。童趣主題墻面、云朵狀的床頭、可愛的小掛衣桿,能讓小朋友在這里充分探索未知、創造快樂! 07. 露臺 TERRACE 露臺存在的意義,大概就是:清晨的時候泡上一杯茶,等待陽光喚醒頭腦;傍晚的時候,可以在這里享受晚風、星月,體驗都市生活中難得的一刻放松。再多養幾盆花花草草,讓美好盡情綻放~ 08. 衛生間 BATHROOM 具有現代感的主衛空間使用灰黑色主調,懸空式的長臺盆柜輕盈時尚,燈光布置層次分明,功能性與美感得到了統一。 客衛,玻璃淋浴間實現簡單的干濕分離,金色的水龍頭與臺盆柜把手、落腳更顯精致。 平面戶型圖 -- ·項目信息· 項目名稱:金都華庭 建筑類型:復式 設計風格:混搭 項目地點:中國·杭州 項目面積:230㎡ 項目服務:設計·施工·硬裝·軟裝 全案設計 設計單位:浙江南鴻裝飾 施工單位:浙江南鴻裝飾
































免費
免費申請戶型規劃
專屬設計師免費1對1全程服務
已經有3781人申請
24小時免費咨詢電話
400-8800-618
你家預算
108080元