
灰墨綠個性色彩碰撞幾何線條,這個家太有藝術張力了!

// 項目信息 //
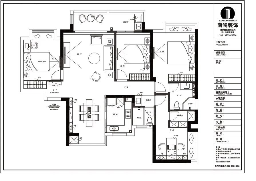
地址 / 東方公館
戶型 / 四室兩廳
面積 / 138㎡
風格 / 現代風格
設計施工 / 浙江南鴻裝飾
本案為寧波東方公館現代風格作品,直爽的線條搭配灰墨綠的個性色彩,在視覺上便形成一股極強的藝術張力,輕松打造出一個時尚精致的生活環境。
戶 型 圖
玄 關 Hallway

入戶正對口布置了矮柜方便業主日常換、放鞋,全室的灰綠色彩在此開始鋪展,徐徐流淌到家中的其他區域,完成圓滿的過渡。
客 廳 Living Room

客廳較為方正,灰綠的主色搭配深色家具,并借抱枕、單人沙發等作為跳色點綴,呈現出極具現代感的家居氛圍。


空間線條感突出,無論是墻面、吊頂,還是家具,都體現了一種端正的秩序美感,色彩與幾何線交相碰撞,散發出不可言喻的視覺張力。

過道將客餐廳無形分隔,簡單純粹的線條勾勒出大體的空間結構,架構出不同的場域。
▲客廳望向餐廳
餐 廳 Dining Room


入門轉角即為餐廳的位置,硬裝風格與客廳相同,纖薄的黑色大理石臺面搭配皮質餐椅,洋溢出些許輕奢格調,一側墨綠色的餐邊柜兼酒柜十分大氣,柜內燈帶設計方便日常使用。
廚 房 Kitchen

L型廚房設計,有足夠的操作臺和儲物空間,原木色的清爽讓人如沐春風。
臥 室 Bedroom

主臥擁有舒適溫和的質感,床品與背景墻均為寧靜的米色系,兩側金屬吊燈增添精致,飄窗臺下方還設計了收納格,便于儲物。

一間次臥做了兒童房,背景的紫色星球圖惹人注目,營造童趣氛圍,嵌入式衣柜與書桌椅的布置讓空間更加實用。
書 房 Study

免費
免費申請戶型規劃
專屬設計師免費1對1全程服務
已經有3781人申請
24小時免費咨詢電話
400-8800-618
你家預算
108080元